
Administratívny objekt, ulica Jaskový rad.
Spoločnosť DOMOVINA real ponúka EXKLUZÍVNE na dlhodobý prenájom plne funkčný, zariadený administratívny objekt
v kvalitnom a modernom prevedení s výhľadom na Bratislavský hrad, Slavín, Kalváriu, Národnú banku SR s vlastným parkovaním, pivnicou a záhradkou.
Detaily o nehnuteľnosti
Nehnuteľnosť s celkovou výmerou podlahovej plochy 210 m² sa nachádza v mestskej časti BA III na ulici Jaskový rad v blízkosti Hlavnej (vlakovej) stanice.
POSCHODIE:
- prízemie (schody)
- 1. poschodie (schody)
VÝMERY:
- plocha pozemku: 200 m²
- pivnica 16 m² (suterén)
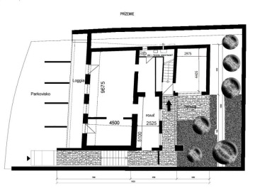
PRÍZEMIE:
- podlahová plocha: 101 m²
- počet miestností: 1x samostatná miestnosť, 1x foajé, 2x kancelársky priestor, WC, kuchynka.
- balkón: 17 m²
- terasa: 27 m² + záhrada 70m²
DISPOZÍCIA:
-viď. pôdorys
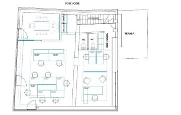
POSCHODIE:
- podlahová plocha: 109 m²
- počet miestností: 2x kancelárska miestnosť (1x 8 miest + 1x 4 miesta) + 1x zasadacia miestnosť, 2x WC, 1 x kuchynka
- terasa: 12 m²
ORIENTÁCIA:
Juh
DISPOZÍCIA:
- viď. pôdorys (prízemie)
- viď. pôdorys (poschodie)
ZARIADENIE:
Kompletné kancelárske zariadenie (viď. foto.), internet UPC, kabeláž, televízne rozvody, klimatizácia (prízemie + poschodie),
vonkajšie el. hliníkové žalúzie, bezpečnostné 8 bodové dvere zn. ADLO, bezpečnostné vnútorné rolety, možnosť doplnenia kamier.
ADMINISTRATÍVNY OBJEKT:
Oplotená murovaná (zateplená) stavba s hliníkovými profilmi okien a vonkajšími el. žalúziami, súkromným pozemkom (záhrada) a parkovaním.
SIETE:
- Elektrina
- Voda
- Plyn
- Kanalizácia
- Internet: UPC – optika.
KÚRENIE/OHREV VODY:
Kombinované (plyn. kotol), elektrické (okenné) podlahové, el. radiátory, klimatizácie.
LOKALITA/OBČIANSKA VYBAVENOSŤ:
Budova sa nachádza v tesnej blízkosti Hlavnej stanice hneď za podjazdom zo Žabotovej ulice, MHD cca 200m, lokálna MHD 60m,
stravovanie v blízkosti, banky v blízkosti.
PARKOVANIE:
Súkromné parkovanie 5 miest (autá) + 2 miesta (motorky).
CENA:
Cena mesačného prenájmu vrátane vnútorného zariadenia, vonkajších parkovacích státí a provízie RK
za kompletný právny servis je 2.500 euro + 300 euro energie (elektrika + plyn). Prenájom možný od 1.6.2023.
Upozornenie:
Text a fotografie použité v inzeráte podliehajú ochrane autorských práv spoločnosti
DOMOVINA real, s.r.o. a nesmú byť kopírované v celku ani po častiach bez súhlasu zadávateľa inzerátu.






















