
2 izbový byt v Ružinove
EXKLUZÍVNE na predaj kompletne vyprataný čiastočne rekonštruovaný 2 izbový byt (s možnosťou prerobenia na 3 izbový) s dvoma balkónmi a pivnicou v zrekonštruovanom bytovom dom v mestskej časti BA II – Ružinov, Komárnícka ulica.
Detaily o nehnuteľnosti
Nehnuteľnosť sa nachádza vo vyhľadávanej lokalite v blízkosti parku Andreja Hlinku a jazera Štrkovec. Byt je vzdušný a svetlý, ideálny pre mladý pár s dieťaťom, prípadne ako investícia s možnosťou dlhodobého prenájmu.
POSCHODIE:
6 z 9 (s výťahom).
VÝMERY:
Podlahová plocha 52,11m2
Balkón (1) 2m2
Balkón (2) 4m2
Pivnica 1,6m2 (prízemie)
ORIENTÁCIA:
Východ
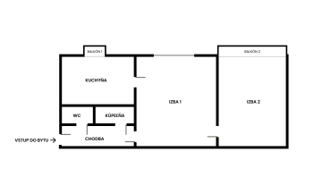
DISPOZÍCIA:
-viď. Pôdorys
REKONŠTRUKCIA:
Byt prešiel základnou rekonštrukciou:
plastové okná v kuchyni a izbe (1), repasované parkety v oboch izbách, nové prahy, vyspravenie stien a kompletné vymaľovanie, náter zárubní a radiátorov, nové interiérové dvere s kľučkami, nové LED svietidlá, nové linoleum v chodbe na toalete a v kuchyni.
BYTOVÝ DOM:
Prešiel kompletnou rekonštrukciou (okrem výťahu):
nová strecha, zateplenie, plastové okná v chodbách, nová vchodová brána na magnet. čip, nové rozvody stupačiek.
MESAČNÉ NÁKLADY:
120€/mes. + energie (elektrika a plyn)
SIETE:
Elektrina, Voda, Plyn, Kanalizácia
KÚRENIE:
Ústredné, merače na radiátoroch + termoregul. hlavice.
LOKALITA/OBČIANSKA VYBAVENOSŤ:
Vynikajúca lokalita s rýchlou dostupnosťou do centra mesta a kompletnou občianskou vybavenosťou (5 min. pešo): jazero Štrkovec, park Andreja Hlinku, TESCO Expres, lekáreň, obľúbená kaviareň Vespa, poliklinika a nemocnica Ružinov, ZŠ, škôlka, zástavky MHD/električiek.
PARKOVANIE:
Verejné pod a v okolí BD.
CENA:
K cene bytu tzn. 179.900,-€ treba pripočítať províziu RK za kompletný právny servis spojený s prevodom nehnuteľnosti do osobného vlastníctva.
Upozornenie: Text a fotografie použité v inzeráte podliehajú ochrane autorských práv spoločnosti
DOMOVINA real, s.r.o. a nesmú byť kopírované v celku ani po častiach bez súhlasu zadávateľa inzerátu.















